



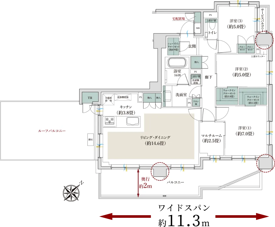
住まいは、広さの数字だけでは語れません。
コンパクトな廊下設計が動線をスマートに整え、
空間を隅々まで活かす、心地よい間取りを実現。
家族の成長や変化に寄り添う住まいです。


住まいの快適性は、光と風が育てます。
開口部を広く確保し、空間をより有効に活用。
連窓サッシによる明るさと風通しが、
伸びやかな開放感を生み出します。


横幅にゆとりを持たせたワイドバルコニー。
ガーデニングやくつろぎ空間としても余裕を持って活用でき、
暮らしに余白を添える、自分らしい屋外時間が楽しめます。








※掲載のルーフバルコニー完成予想CGは、現地7階相当の高さから海浜幕張方面を望む眺望写真(2025年10月撮影)に外観完成予想CGを合成の上加工したもので、実際の住戸からの眺望や景観とは異なります。眺望や景観は階数・向き・住戸タイプにより異なり、周辺環境の変化等に伴い将来にわたり保証されるものではありません。予めご了承ください。また計画段階の図面を基に描いたもので、外観・形状・仕上げ等は実際とは異なる場合があります。タイルや各種部材の質感や色等は実際とは異なります。外観形状の細部や設備機器等は表現されておりません。行政指導及び施工上の理由等のため今後変更となる場合があります。またバルコニーの家具・備品・調度品等は、配置例を示したものであり、販売価格に含まれておりません。※ルーフバルコニーの使用に関しては、管理規約に従っていただきます。
※掲載のイラスト間取りは、図面を基に描き起こしたもので、実際とは異なります。家具・調度品等は価格に含まれません。また、家具はイメージで描かれています。実際のサイズや配置を保証するものではありません。
※設備仕様についてはタイプにより異なる場合がございます。
※掲載の参考写真は、当社施工事例またはメーカー参考写真であり、実際とは異なります。
※掲載の写真はAgタイプモデルルームを撮影(2026年1月)したもので、有償オプションが含まれております。また、家具・小物等は販売価格に含まれておりません。※設備仕様についてはタイプにより異なる場合がございます。
※掲載の情報は2026年4月時点のものであり、今後変更になる場合があります。